
Projektová dokumentácia- SIM02
- Katalóg projektov- online
- trojpodlažný dom vo svahu
- garáž v suteréne
Obec: | Nitra |
---|---|
Okres: | Nitra |
Kraj: | Nitriansky kraj |
Druh: | Domy |
Typ: | Predaj |
Typ domu: | Rodinný dom |
Iné: |
Rodinný dom SIM 05 vynikne v zástavbe domov svojou modernou architektúrou. SIM 05 - moderný 6 izbový, poschodový dom vo svahu väčšej veľkostnej kategórie s terasami a garážou pre 2 osobné autá. Projekt luxusného domu je vhodný na svahovitý pozemok a poskytuje panoramatické výhľady na širšie okolie. Je vhodný pre užívanie 5-6 člennej rodiny. Rodinný dom očarí presvetlenou dispozíciou a orientáciou do záhrady.
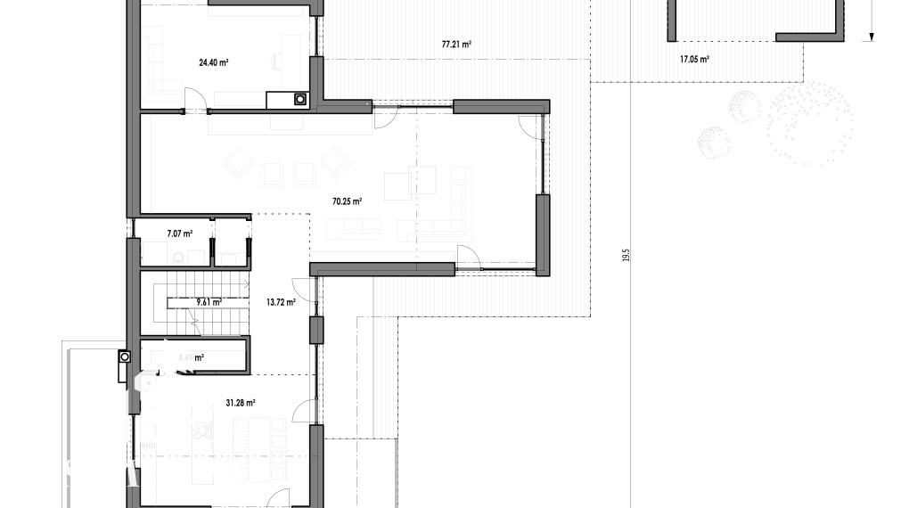
Jedná sa o čiastočne podpivničený rodinný dom. V suteréne sa nachádza dvoj-garáž, odkladacie priestory a technické zázemie domu. Keď otvoríte dvere do domu, privíta vás priestranná predsieň do ktorej je možné umiestniť vstavaný šatník. Dvojramenným schodiskom sa dostávame na prvé nadzemné podlažie. Po ľavej strane sa nachádza kuchyňa s jedálňou. Kuchyňa poteší všetky gazdiné, ktoré majú rady dostatok miesta na prípravu jedál. Časť určenú na prípravu jedál tvorí kuchynská linka s ostrovčekom. Ten poslúži nielen ako ďalšia plocha na varenie a odkladací priestor, ale môžete k nemu umiestniť aj barové stoličky. Súčasťou kuchyne je oddelený priestor pre komoru. Jedáleň pre rodinné stolovanie je situovaná vedľa kuchyne pri východe na terasu. Počas jedla si vďaka tomu budete môcť užívať výhľad do záhrady. Umiestniť do nej môžete jedálenský stôl pre 6 – 8 osôb.
Spoločenská časť domu poskytne pre každého člena rodiny priestor na trávenie spoločného času. V obývacej časti je dostatok miesta na sedaciu súpravu s kreslom pre 5-8 osôb s výhľadom na krb. Posedenie s priateľmi či večerný relax si tak môžete spríjemniť teplom z praskajúceho ohníka. Za obývacou izbou sa nachádza pracovňa.
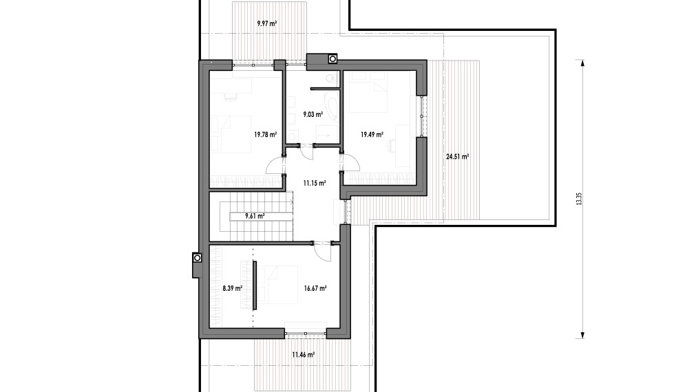
Na najvyššom poschodí domu sa nachádzajú spálňa so šatníkom, 2 detské izby a kúpeľňa. Nočná časť domu vytvára prostredie, v ktorom si môžete užívať nerušený odpočinok, sústrediť sa na prácu alebo prípravu do školy. Návrh spálne osloví každého, kto si rád svoju rannú kávu alebo večerný drink vychutná na terase. Detské izby sa dajú zariadiť tak, aby mali deti k dispozícii všetko na každodenné povinnosti, hry aj odpočinok. Podlahová plocha miestností dovolí umiestniť postele, šatníky, poličky aj písacie stolíky.
Projektová dokumentácia domu - SIM05 je spracovaná , vrátane všetkých profesií, v stupni na Stavebné povolenie.
V prípade záujmu realizácie stavby našou spoločnosťou, projekt neplatíte, zároveň vám ako bonus udelíme zľavový kupón GOLD CARD S - pre zakúpenie kuchyne, sanity a vybavenia vašej stavby.