Používame cookies

Súbory cookie a ďalšie technológie sledovania používame na zlepšenie vášho zážitku z prehliadania našich webových stránok, na to, aby sme vám zobrazovali prispôsobený obsah a cielené reklamy, na analýzu návštevnosti našich webových stránok a na pochopenie toho, odkiaľ naši návštevníci prichádzajú. Viac info

Projektová dokumentácia- Rodinného domu SIM06

Obec: Bratislava-Nové Mesto
Okres: Bratislava III
Kraj: Bratislavský kraj
Druh: Domy
Typ: Predaj
Typ domu: Rodinný dom
Iné:
4 750 €

Popis nehnuteľnosti

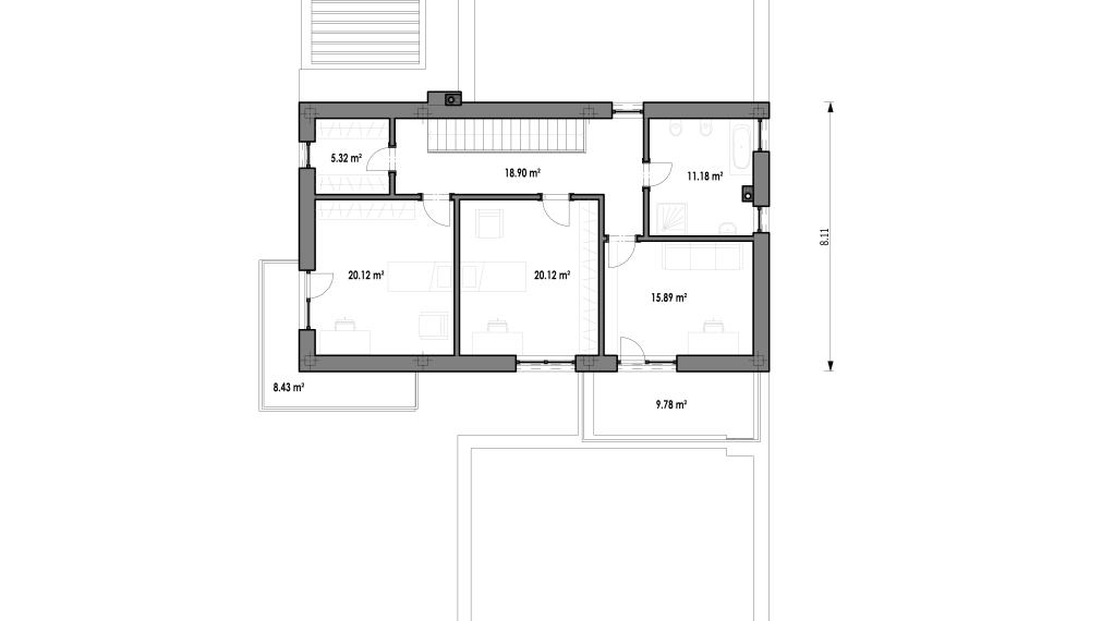
Samostatne stojaci prízemný rodinný dom SIM 06 bez podpivničenia je vhodný do rovinatého, prípadne mierne svahovitého terénu. Rodinný dom SIM 06 ponúka úžitkovú plochu až 155 m2, je strednej veľkostnej kategórie určený pre 4-6 člennú rodinu. Rodinný dom očarí presvetlenou dispozíciou a orientáciou do záhrady.

Rodinný dom s pultovou strechou SIM 06 je navrhnutý s dôrazom na spoločný rodinný život aj dostatok súkromia na relax. Vnútorná dispozícia rodinného domu je tvorená dennou a nočnou časťou. Po vstupe do domu sa ocitnete v predsieni. Vstupnú chodbu od zvyšku domu oddeľujú dvere, ktoré bránia prenikaniu chladu z okolia. Predsieň ďalej prechádza do chodby, ktorou sa dá prejsť do dennej alebo nočnej časti. Pohoda počas spoločných chvíľ aj dostatok miesta na varenie — to všetko na vás čaká v dennej časti domu. Obývačka s kuchyňou tvorí veľkopriestor, v ktorom sa budú sústreďovať všetky spoločné činnosti. Môžete v nej vytvoriť komfortné prostredie, v ktorom sa každý bude cítiť príjemne. Každého milovníka prírody poteší výhľad do záhrady cez  francúzske okná. Dominantou dennej časti domu je krb. Posedenie s priateľmi či večerný relax si tak môžete spríjemniť teplom z praskajúceho ohníka. Kuchyňa poteší všetky gazdiné, ktoré majú rady dostatok miesta na prípravu jedál. Množstvo miesta na varenie poskytne kuchynská linka v tvare U. Od obývačky ju oddeľuje štýlový barový pult, ktorý zároveň vytvára miesto na spoločné rozhovory pri jedle. V tomto rodinnom dome nechýba ani komora, ktorá sa nachádza vedľa kuchyne. Jedáleň je situovaná vedľa kuchyne pri východe na terasu. Pri jedle si tak budete môcť užívať nielen výhľad na zeleň, ale aj čerstvý vzduch z exteriéru. Umiestniť do nej môžete jedálenský stôl pre 6 – 8 osôb. V letnom období budete mať možnosť tráviť spoločné chvíle aj na krytej terase.

Nočná časť domu vytvára prostredie, v ktorom si môžete užívať nerušený odpočinok, sústrediť sa na prácu alebo prípravu do školy. V nočnej časti rodinného domu sa nachádza spálňa so šatníkom a vlastnou kúpeľňou,  2 detské izby, kúpeľňa a WC. Detské izby sa dajú zariadiť tak, aby mali deti k dispozícii všetko na každodenné povinnosti, hry aj odpočinok. Podlahová plocha miestností dovolí umiestniť postele, šatníky, poličky aj písacie stolíky.

Vlastnosti

Status:
aktívne
Úžitková plocha:
155.8 m2
Zastavaná plocha:
190.3 m2
Stav:
novostavba
Terasa:
áno
Garáž:
áno

Radi Vám poradíme

Podobné nehnuteľnosti