
Projektová dokumentácia- SIM02
- Katalóg projektov- online
- trojpodlažný dom vo svahu
- garáž v suteréne
Mestská časť: | Staré Mesto |
---|---|
Obec: | Nitra |
Okres: | Nitra |
Kraj: | Nitriansky kraj |
Druh: | Domy |
Typ: | Predaj |
Typ domu: | Rodinný dom |
Iné: |
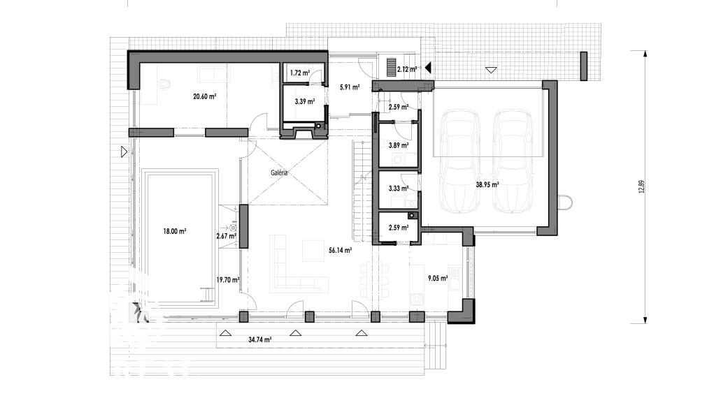
Samostatne stojaci poschodový rodinný dom SIM 03 s galériou, vnútorným bazénom a dvojgarážou je vhodný do rovinatého, prípadne mierne svahovitého terénu. Tento dom prekvapí rozmernými presklenými plochami, ktoré navodzujú pocit otvoreného priestoru a privádzajú do interiéru množstvo denného svetla. Rodinný dom SIM 03 ponúka úžitkovú plochu až 280 m2. Je to dom väčšej veľkostnej kategórie určený pre 4-5 člennú rodinu. Priestranné miestnosti budú vyhovovať aj náročným obyvateľom, ktorý majú radi moderné vzdušné zariadenie domácnosti. Dispozícia domu je rozdelená na nočnú a dennú časť.
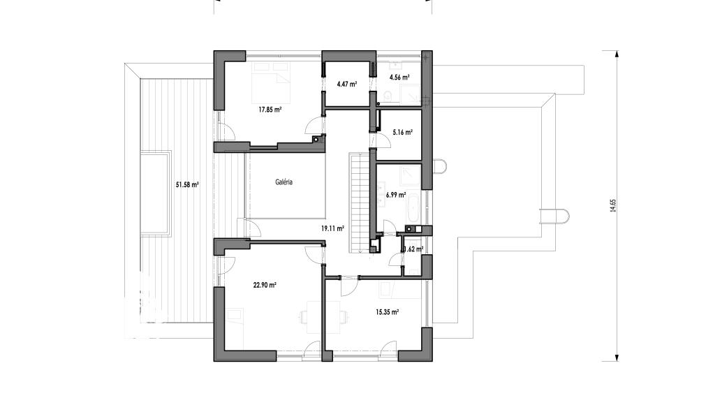
Spodné podlažie tvorí dennú zónu rodinného domu. Keď otvoríte dvere do domu, privíta vás predsieň so šatníkom a samostatným WC. Vstupnú chodbu od zvyšku domu oddeľujú dvere, ktoré bránia prenikaniu chladu z okolia. Spoločenská časť domu poskytne pre každého člena rodiny priestor na trávenie spoločného času. Dojem priestrannosti je znásobený galériou nad obývacou časťou a veľkoplošnými preskleniami, ktoré sa postarajú aj o presvetlenie priestoru. Otvorený priestor obývačky, jedálne a kuchyne je doplnený votknutým schodiskom, ktoré tvorí výrazný estetický prvok. Dominantou dennej časti domu je krb. Posedenie s rodinou, priateľmi či večerný relax si tak môžete spríjemniť teplom z praskajúceho ohníka. Kuchyňa poteší všetky gazdiné, ktoré majú rady dostatok miesta na prípravu jedál. Časť určenú na prípravu jedál tvorí kuchynská linka s ostrovčekom. Ten poslúži nielen ako ďalšia plocha na varenie a odkladací priestor, ale môžete k nemu umiestniť aj barové stoličky. Súčasťou kuchyne je oddelený priestor pre komoru. Jedáleň pre rodinné stolovanie je situovaná medzi kuchyňou a obývačkou pri východe na terasu. Počas jedla si vďaka tomu budete môcť užívať výhľad do záhrady. Umiestniť do nej môžete jedálenský stôl pre 6 – 8 osôb. V letnom období budete mať možnosť tráviť spoločné chvíle aj na terase. Zaujímavosťou dispozície rodinného domu je vnútorný bazén s rozmermi 6x3 m. Na poschodí domu sa nachádzajú spálňa, so šatníkom a vlastnou kúpeľňou, 2 detské izby, šatník, kúpeľňa a samostatné WC. Detské izby majú odlišnú veľkosť. Do väčšej z nich sa pohodlne zmestia dve postele, šatník a dva písacie stolíky, pričom zostáva miesto na hranie a relax. Menšia izba je určená pre jedno dieťa, dajú sa v nej zariadiť tiež pracovňa alebo hosťovská izba.
Projektová dokumentácia domu - SIM03, vrátane všetkých profesií, v stupni na Stavebné povolenie.
V prípade záujmu realizácie stavby našou spoločnosťou, projekt neplatíte, zároveň vám ako bonus udelíme zľavový kupón GOLD CARD S - pre zakúpenie kuchyne, sanity a vybavenia vašej stavby.