
Projektová dokumentácia- SIM01
- Katalóg projektov- online
- prízemný dom
- s bazénom
Mestská časť: | Nová Lipnica |
---|---|
Obec: | Dunajská Lužná |
Okres: | Senec |
Kraj: | Bratislavský kraj |
Druh: | Domy |
Typ: | Predaj |
Typ domu: | Rodinný dom |
Iné: |
Poschodový rodinný dom SIM 11 si Vás získa svojím moderným prevedením. Luxusný dvojpodlažný dom s garážou pre 2 autá je určený na príjemné bývanie pre 4-6 člennú rodinu. Dizajn domu je navrhnutý v modernom štýle s kombináciou pultovej a plochej strechy. Tento projekt pre moderný rodinný dom s dvojgarážou si môžete vybrať na realizáciu na rovinatom až mierne svahovitom pozemku. Dispozícia domu je jednoduchá a pritom funkčná. Ak hľadáte niečo v modernejšom štýle, tento dom je pre Vás tá správna voľba. Priestranné miestnosti budú vyhovovať aj náročným obyvateľom, ktorý majú radi moderné vzdušné zariadenie domácnosti. Rodinný dom očarí presvetlenou dispozíciou a orientáciou do záhrady.
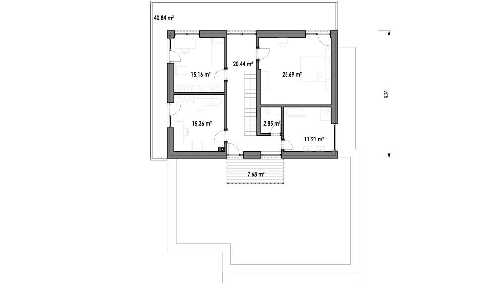
Rodinný dom SIM 11 je navrhnutý s dôrazom na spoločný rodinný život aj dostatok súkromia na relax. Vnútorná dispozícia rodinného domu je tvorená dennou a nočnou časťou. Po vstupe do domu sa ocitnete v priestrannej predsieni z ktorej je prístup do samostatného WC. Vstupnú chodbu od zvyšku domu oddeľujú dvere, ktoré bránia prenikaniu chladu z okolia. Ako budete kráčať ďalej smerom do srdca tohto rodinného domu vojdete do spoločenskej časti. Po pravej strane sa nachádza technické zázemie a wellness, smerom vľavo sa ocitneme v obývacej izbe. Tento dom prekvapí rozmernými presklenými plochami, ktoré navodzujú pocit otvoreného priestoru a privádzajú do interiéru množstvo denného svetla. Obývačka s výhľadom do záhrady poskytne dostatok miesta na sedaciu súpravu pre 6 – 8 osôb a obývaciu stenu. Môžete v nej vytvoriť komfortné prostredie, v ktorom sa každý bude cítiť príjemne. Dominantou dennej časti domu je krb. Posedenie s priateľmi či večerný relax si tak môžete spríjemniť teplom z praskajúceho ohníka. Kuchyňa poteší všetky gazdiné, ktoré majú rady dostatok miesta na prípravu jedál. V tomto rodinnom dome nechýba ani komora, ktorá sa nachádza hneď pri kuchyni. Otvorený priestor kuchyne a obývačky je doplnený votknutým schodiskom, ktoré tvorí výrazný estetický prvok. Na prízemí je situovaná aj pracovňa.
Nočná časť domu sa nachádza na poschodí a vytvára prostredie, v ktorom si môžete užívať nerušený odpočinok, sústrediť sa na prácu alebo prípravu do školy. V nočnej časti rodinného domu sa nachádza spálňa, 2 detské izby, kúpeľňa a samostatné WC. Detské izby sa dajú zariadiť tak, aby mali deti k dispozícii všetko na každodenné povinnosti, hry aj odpočinok. Podlahová plocha miestností dovolí umiestniť postele, šatníky, poličky aj písacie stolíky.