
Projektová dokumentácia- SIM01
- Katalóg projektov- online
- prízemný dom
- s bazénom
Ulica: | Kúpeľná |
---|---|
Mestská časť: | Veľké Bielice |
Obec: | Partizánske |
Okres: | Partizánske |
Kraj: | Trenčiansky kraj |
Druh: | Domy |
Typ: | Predaj |
Typ domu: | Rodinný dom |
Iné: |
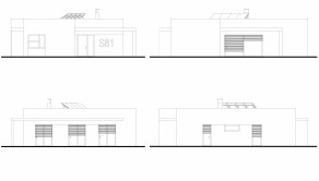
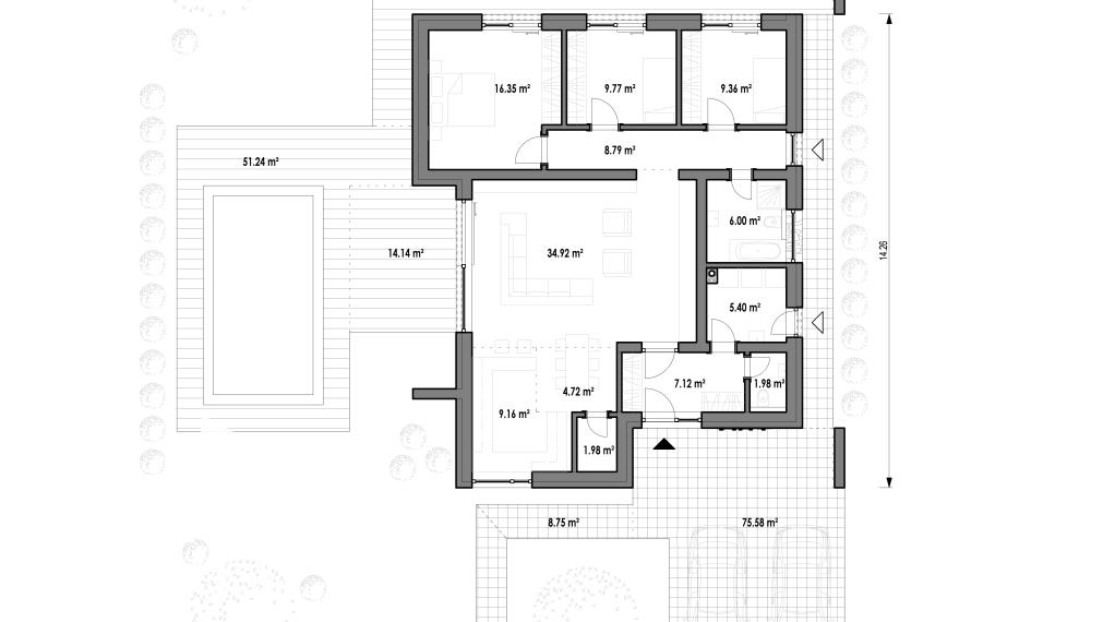
Moderný rodinný dom SIM 10 s dokonalým priestorovým usporiadaním. Tento 4 izbový dom uspokojí potrebu na bývanie 4 - 6 člennej rodiny. Rodinný dom SIM 10 ponúka úžitkovú plochu 115 m2. Tento projekt pre moderný rodinný dom si môžete vybrať na realizáciu na rovinatom až mierne svahovitom pozemku. Vďaka premyslenému rozdeleniu dennej a nočnej časti si v tomto dome nájde každý člen domácnosti svoje súkromie. Vstup do domu s prestrešením vedie do priestrannej predsiene, do ktorej je možné situovať vstavaný šatník, vešiaky a botník. Vstupnú chodbu od zvyšku domu oddeľujú dvere, ktoré bránia prenikaniu chladu z okolia. Nájdete tu tiež WC a samostatnú technickú miestnosť, do ktorej je možné situovať práčku so sušičkou. Predsieň ďalej prechádza do chodby, ktorou sa dá prejsť do dennej alebo nočnej časti domu. Denná časť poskytne pre každého člena rodiny priestor na trávenie spoločného času ale aj na relax. Kuchyňa poteší všetky gazdiné, ktoré majú rady dostatok miesta na prípravu jedál. Kuchynská linka je navrhnutá aj s barovým pultom. Súčasťou kuchyne je oddelený priestor na komoru. Jedáleň je situovaná vedľa kuchyne a môžete do nej umiestniť jedálenský stôl pre 6 – 8 osôb. Obývačka je miesto na relax aj stretávanie s blízkymi. Môžete v nej vytvoriť komfortné prostredie, v ktorom sa každý bude cítiť príjemne. V obývacej časti je dostatok miesta na sedaciu súpravu s kreslom pre 6 osôb. Každého milovníka prírody poteší výhľad do záhrady cez francúzske okná. Nočná časť domu vytvára prostredie, v ktorom si môžete užívať nerušený odpočinok, sústrediť sa na prácu alebo prípravu do školy. Návrh spálne osloví každého, kto si rád svoju rannú kávu alebo večerný drink vychutná v záhrade. Izba má vlastné posuvné dvere na terasu. Detské izby sa vďaka svojej veľkosti dajú zariadiť tak, aby mali deti k dispozícii všetko na každodenné povinnosti, hry aj odpočinok. Podlahová plocha miestností dovolí umiestniť postele, šatníky, poličky aj písacie stolíky.
Projektová dokumentácia domu – SIM10 je spracovaná , vrátane všetkých profesií, v stupni na Stavebné povolenie.
V prípade záujmu realizácie stavby našou spoločnosťou, projekt neplatíte, zároveň vám ako bonus udelíme zľavový kupón GOLD CARD S - pre zakúpenie kuchyne, sanity a vybavenia vašej stavby.