Používame cookies

Súbory cookie a ďalšie technológie sledovania používame na zlepšenie vášho zážitku z prehliadania našich webových stránok, na to, aby sme vám zobrazovali prispôsobený obsah a cielené reklamy, na analýzu návštevnosti našich webových stránok a na pochopenie toho, odkiaľ naši návštevníci prichádzajú. Viac info

Predaj budovy určenej na realizáciu bytov

Ulica: Jelenecká
Obec: Nitrianske Hrnčiarovce
Okres: Nitra
Kraj: Nitriansky kraj
Druh: Objekty
Typ: Predaj
Typ objektu: Polyfunkčná budova
Iné:
699 000 €

Popis nehnuteľnosti

Ponúkame vám na predaj objekt s optimálnou mierou zhodnotenia .

Stavbu je možné užívať ihneď. V objekte je možné bývať  a  nebytových častiach ihneď podnikať. A to bez ďalšej veľkej investície.

Aktuálne sa v priestoroch nachádza kompletne zariadený moderný  3 izbový byt.

Zariadené nebytové priestory vybavené  vlastnou hygienou ,  na obidvoch poschodiach.

Stavbu je možné upraviť tak, že vzniknú v objekte  daľšie tri 3-izbové byty.

Objekt sa náchadza priamo v centre obce Nitrianske Hrnčiarovce, 5 min do centra Nitra. Veľmi kľudná loklita.  Všetky služby na dosah. Pravidelná doprava aj MHD.

Možnosť parkovať pred objektom na vlastnom pozemku.

Po dohode s obcou možnosť vybudovať doplnkové pozdĺžne parkovanie popri  hlavnej ceste.

Úžitková plocha  460 m²
Veľkosť pozemku 880 m²

V objekte sa nachádza 2x zdroj tepla - plnový kotol - možnosť samostatne regulovať jedntlivé časti objetu. Bytová časť má samostané vykurovanie pomocou elektro. Určitá časť obektu má podlahové rozovody a určitá časť je vykurovaná radiatormi. Všetko funkčné.

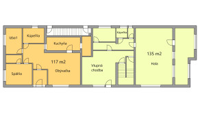
Plocha bytov :

-aktuálny zariadený byt - 117m²,

-navrhované byty- 135m², 94 m², 100m² možný je aj predpredaj bytov,  možnosťou dokončenia na kľúč. 

V prípade akýchkoľvek otázok nás kontaktujte.

Vlastnosti

Status:
aktívne
Vlastníctvo:
osobné
Úžitková plocha:
460 m2
Zastavaná plocha:
476 m2
Podlahová plocha:
460 m2
Stav:
úplne prerobený
Typ budovy:
zmiešané
Typ výbavy:
kompletne vybavený
Loggia:
áno
Terasa:
áno
Pivnica:
áno
Špajza:
áno
Sklad:
áno
Rok poslednej rekonštrukcie:
2019
Počet poschodí od prízemia vyššie:
2
Celková plocha:
860 m2
Počet vonkajších parkovacích miest:
13
Inžinierske siete:
áno
Voda:
áno
Elektrika:
áno
Plyn:
áno
Kanalizácia:
áno
Elektrika - na pozemku:
áno
Plyn - na pozemku:
áno
Vykurovanie - centrálne:
áno
Vykurovanie - podlahové:
áno
Telefón:
áno
Internet:
áno

Informatívna úverová kalkulačka

Pozrieť na mape

Radi Vám poradíme

Podobné nehnuteľnosti